Back
Scroll
8 Boardman Place
Available For lease
8 Boardman Place
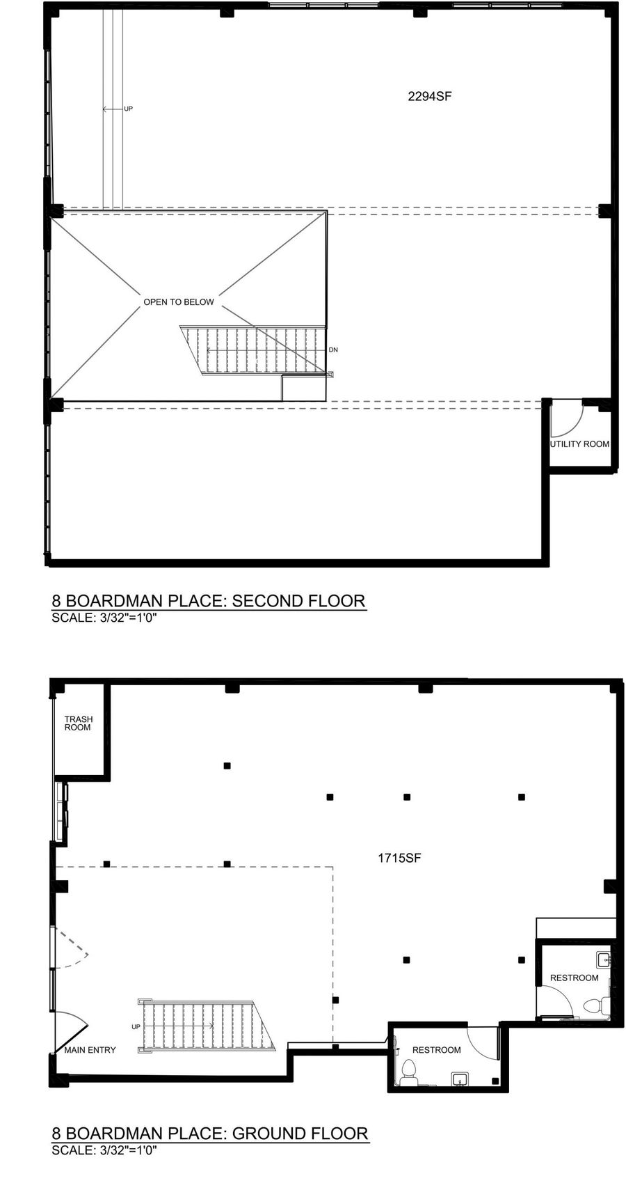
- 4,009 total square feet
- 1,715 square feet on ground floor
- 2,294 square feet on second floor
- $16,370 per month, industrial gross
- Negotiable term
- Zoning
- SALI (Service Arts Light Industrial)
- SoMa Hall of Justice Legal Service Use District: this includes offices of “...attorneys, bail and services; government agencies, union halls, and other criminal justice activities and services directly related to the criminal justice of Hall of Justice...”
- Other uses: business service, light manufacturing, trade shop, catering services, wholesale sales, business goods and equipment repair, and commercial storage
Beautifully renovated two-story creative space in the heart of the SOMA neighborhood. 8 Boardman Place offers light-filled, contemporary office space with soaring barrel–vaulted ceilings, steel trusses, a striking glass and steel staircase, abundant windows, skylights, and an exclusive storefront entry. This unique project is in move-in condition, awaiting the final touches of a discriminating tenant.
Features
- 4,009 +/- total square feet
- Two floors with fantastic natural light
- New, private storefront off Boardman Place
- Modern interior glass + steel staircase and mezzanine railings
- Soaring 25’ high barrel ceilings framed with beautiful steel tresses
- Exposed wood joists and beams
- Multiple skylights and expansive industrial style windows
- Custom pendant light fixtures
- Acid-stained concrete floors with high gloss finish on main level
- New carpet on second level
- Kitchenette, rift oak cabinets, quartz counter, stainless refrigerator
- Two spacious private unisex ADA restrooms
- New HVAC systems
- Conveniently close to freeway access and Financial District





